歡迎進入長沙潤洲環(huán)保設備有限公司!

專業(yè)水處理設備生產廠家

Professional water treatment manufacturers

咨詢熱線/Support Hotline

18974988658

纖維球高效過濾器

纖維球高效過濾器

纖維球高效過濾器

分享到:
纖維球過濾器
全國咨詢熱線:
18974988658

詳情介紹:


技術參數
 1、工作壓力:0.6MPa  6、反洗水耗:1~30%
 2、試驗壓力:0.75MPa  7、懸浮物去除率:85~96%
 3、運行流速:30m/h  8、濁度:
 粗濾:進水≤100mg/L,出水≤10mg/L
 精濾:進水≤20mg/L, 出水≤2mg/L 二級串聯:進水≤100mg/L,出水≤2mg/L
 4、反洗強度:0.5m3/min/m2
 5、反洗時間:20~30min

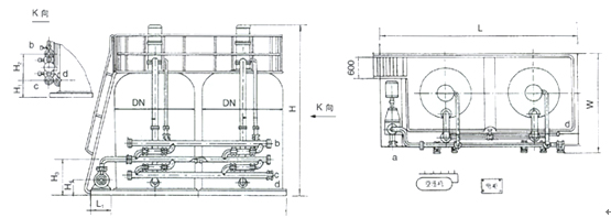
尺寸及參數表 串聯自動(手動)纖維球高效過濾器外形尺寸表
型 號 組合 形式 出力 (t/h) DN H H1 H2 Hs H4 W
(手動)
L L1 外形尺寸m
(長×寬×高)
GXFQ-800/15 自動 15 800 4068 420 720 780 332 1570 2850 225 3.3x1.7x4.07
手動 3.3x1.6x4.07
GXFQ-1000/20 自動 20 1000 4205 420 720 780 360 1630 3090 225 3.5x1.8x4.25
手動 3.5x1.7x4.25
GXFQ-1200/30 自動 30 1200 4575 540 800 940 380 1840 3450 225 3.9x2x4.6
手動 3.9x1.8x4.6
GXFQ-1600/60 自動 60 1600 4838 650 1000 1150 545 2330 4410 305 4.7x2.4x4.9
手動 4.7x2.4x4.9
GXFQ-2000/90 自動 90 2000 4800 474 1060 1004 595 2830 5260 330 5.1x3.8x4.8
手動 5.14x2.83x4.8
GXFQ-2400/130 自動 130 2400 5180 389 1200 989 630 3250 6130 365 6x3.4x5.18
手動 6x3.25x5.18
GXFQ-2600/160 自動 160 2600 5274 394 1320 1054 630 3560 6530 365 6.41x3.61x5.27
手動 6.41x3.51x5.27
GXFQ-2800/180 自動 180 2800 5414 450 1700 1300 670 3697 6930 365 6.81x3.89x5.4
手動 6.81x3.67x5.4
GXFQ-3000/210 自動 210 3000 5514 450 1700 1300 670 3847 7330 365 7.21x4.04x5.5
手動 7.21x3.82x5.5

串聯自動(手動)纖維球高效過濾器相關參數表
型 號 電機功率(kw) a b c d 地基截荷
(kg/m2)
備 注
水泵 攪拌機 空壓機
GXFQ-800/15 7.5 4x2 5.5 DN65 DN50 DN50 DN32 自動 1800 法蘭標準為
GB/T9119 -2000PN1.0

a-進水管口
b-反洗出水 管口
c-出水管口
d-溢流及放 空管口

(自動) 手動 1800
GXFQ-1000/20 7.5 4x2 5.5 DN65 DN65 DN65 DN32 自動 2100
(自動) 手動 2000
GXFQ-1200/30 7.5 4x2 5.5 DN80 DN80 DN80 DN32 自動 2300
(自動) 手動 2300
GXFQ-1600/60 15 7.5x2 5.5 DN100 DN100 DN100 DN32 自動 2400
(自動) 手動 2400
GXFQ-2000/90 22 15x2 5.5 DN125 DN125 DN125 DN32 自動 2600
(自動) 手動 2600
GXFQ-2400/130 45 18.5x2 5.5 DN150 DN150 DN150 DN40 自動 2800
(自動) 手動 2800
GXFQ-2600/160 45 22x2 5.5 DN150 DN150 DN150 DN40 自動 2100
(自動) 手動 2200
GXFQ-2800/180 45 22x2 5.5 DN200 DN200 DN200 DN40 自動 2200
(自動) 手動 2300
GXFQ-3000/210 45 22x2 5.5 DN200 DN200 DN200 DN40 自動 2300
(自動) 手動 2500

并聯自動(手動)纖維球高效過濾器相關參數表型號
組合 形式 出力 (t/h) DN H H1 H2 H3 H4 W
(自動)
L L1 外形尺寸m
(長×寬×高)
CTGXFB-800/30 自動 30 800 4068 420 720 780 332 1640 2850 225 3.3x1.7x4.07
手動 3.3x1.6x4.07
CTGXFB-1000/40 自動 40 1000 4205 420 720 780 360 1710 3090 225 3.5x1.8x4.25
手動 3.5x1.7x4.25
CTGXFB-1200/60 自動 60 1200 4575 540 800 940 380 1990 3450 225 3.9x2x4.6
手動 3.9x1.8x4.6
CTGXFB-1600/120 自動 120 1600 4838 650 1000 1150 545 2480 4410 305 4.9x2.4x4.9
手動 4.9x2.3x4.9
CTGXFB-2000/180 自動 180 2000 4800 474 1060 1004 595 3050 5260 330 5.26x3.05x4.8
手動 5.26x2.83x4.8
CTGXFB- 2400/260 自動 260 2400 5180 389 1200 989 630 3400 6130 365 6.13x3.4x5.18
手動 6.13x3.25x5.l8
CTGXFB-2600/320 自動 320 2600 5274 394 1320 1054 630 3672 6530 365 6.53x2.67x5.27
手動 6.53x3.56x5.27
CTGXFB-2800/360 自動 360 2800 5414 450 1700 1300 670 3972 6930 365 6.93x3.97x5.41
手動 6.93x3.69x5.41
CTGXFB-3000/420 自動 420 3000 5514 450 1700 1300 670 4122 7330 365 7.33x4.12x5.51
手動 7.33x3.85x5.51

并聯自動(手動)纖維球高效過濾器相關參數表
型 號 電機功率(kw) a b c d 地基截荷
(kg/m2)
備 注
水泵 攪拌機 空壓機
CTGXFB-800/30 7.5 4x2 5.5 (自動) DN80 DN80 DN80 DN32 自動 1800 法蘭標準為
GB/T9119 -2000PN1.0
a-進水管口
b-反洗出水管口
c-出水管口
d-溢流及放空管口
于動 1800
CTGXFB-1000/40 7.5 4x2 5.5 (自動) DN80 DN80 DNl00 DN32 自動 2200
手動 2100
CTGXFB-1200/60 7.5 4x2 5.5 (自動) DNl00 DNl00 DN150 DN32 自動 2300
手動 2300
CTGXFB-1600/120 15 7.5x2 5.5 (自動) DN150 DN150 DN200 DN32 自動 2400
手動 2400
CTGXFB-2000/180 30 15x2 5.5 (自動) DN200 DN200 DN200 DN32 自動 2600
手動 2600
CTGXFB-2400/260 55 18.5x2 5.5 (自動) DN200 DN200 DN150 DN40 自動 2800
手動 2800
CTGXFB-2600/320 55 22x2 5.5 (自動) DN250 DN200 DN250 DN40 自動 2000
手動 2000
CTGXFB-2800/360 55 22x2 5.5 (自動) DN250 DN200 DN250 DN40 自動 2000
手動 2300
CTGXFB-3000/420 55 22x2 5.5 (自動) DN250 DN200 DN250 DN40 自動 2200
手動 2300

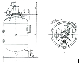
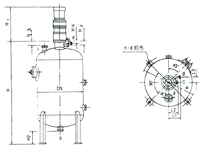
單臺外形尺寸
水處理設備生產廠家,過濾器,一體化污水設備,湖南廢水處理
Ф800-Ф1600系列設備外形圖

水處理設備生產廠家,過濾器,一體化污水設備,湖南廢水處理
Ф2000-Ф3000系列設備外形圖
型號 出力(t/ h) DN H H1 H2 H3 H4 H5 Ф L L1 L2 L3 n-d 功率 (kw) 地基截荷 (t/m2)
GXF-800/15 15 800 2866 1062 350 70 140 100 1000
300 265 120 4-18 4 3.2
GXF-1000/20 20 1000 3000 1065 400 75 80 100 1240
300 235 120 4-18 4 2.9
GXF-1200/30 30 1200 3280 1141 500 150 200 150 1432
350 276 120 4-22 4 3.2 I~
GXF-1600/60 60 1600 3480 1180 500 150 140 120 1850
350 263 120 4-22 7.5 3.1
GXF-2000/90 90 2000 3645 980 190 150 90 120 2100 150 450 350 120 8-30 15 4.2
GXF-2400/130 130 2400 3970 1036 215 150 140 120 2500 150 450 370 120 8-30 18.5 4.3
XF-2600/160 160 2600 4070 1030 190 150 140 120 2700 150 450 389 120 8-36 22 4.4
XF-2800/180 180 2800 4170 1030 260 150 140 120 2900 150 450 389 120 8-36 22 4.7
XF-3000/210 210 3000 4270 1030 260 150 120 140 3100 150 450 389 120 8-36 22 4.7

串、并聯自動(手動)設備外形圖
水處理設備生產廠家,過濾器,一體化污水設備,湖南廢水處理

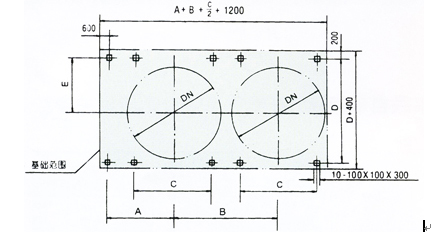
串、并聯自動(手動)纖維球高效過濾器基礎
水處理設備生產廠家,過濾器,一體化污水設備,湖南廢水處理

DN A B C D E
串聯 串聯
800 825 825 1200 600 1300 520
1000 885 885 1320 660 1360 520
1200 975 975 1500 900 1545 602.5
1600 1195 1255 1900 1100 1994 804
2000 1420 1480 2300 1700 2455 1065
2400 1680 1715 2700 1900 2910 1260
2600 1755 1815 2900 2300 3170 1370
2800 1855 1915 3100 2520 3460 1460
3000 1955 2015 3300 2700 3605 1555

在線預訂

*
*
稍后聯系
>>
在線客服
在線客服
在線客服
客服熱線
18974988658

手機網站

微信公眾號